Looking to transform your space?

Our team of furniture experts are on hand to discuss your options & start your salon design journey with our easy 3 step process!

Why use our design service?

At Salons Direct, we're not just about supplying the essentials; we're about transforming your salon dreams into reality. Whether you’re a small salon/spa, barbershop, high-street chain or just looking to upgrade your furniture, our team will work with you to ensure your space is unique to you. 

With a range of market-leading brands from our exclusive Lotus by Salons Direct range to premium brands like REM, Lemi, and Takara Belmont, we have furniture to suit every style and budget. 

With over 30 years experience we have helped 1,000's of salon/spa and barbershop owners who have worked with us from concept to completion of their salon refit journey.

1. DESIGN BRIEF

Contact us today and book an appointment with one of our furniture experts who will discuss your salon design ideas so we can fully understand your vision.

If you are looking for bespoke furniture items including customised colours, styles and embroidery, we offer a professional salon planning service in partnership with REM. We will work with you to arrange consultations and design planning to ensure you receive the best advice and support. 

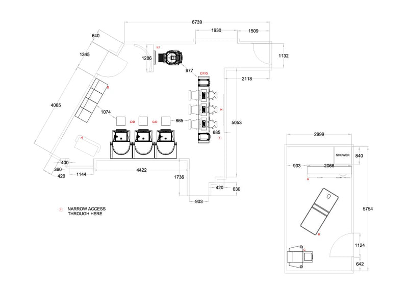
2. PLANNING & DESIGN

Our designers utilise a range of software to create detailed layouts and floor plans. This ensures optimal space utilisation, proper equipment placement, and a functional flow that enhances your client’s experience. 

2D CAD Designs:
Visualize the layout before it takes shape! Our 2D blueprints provide a bird's-eye view of your future salon, allowing you to fine-tune the design and ensure it aligns with your vision. From styling stations to waiting areas, every element is meticulously positioned for maximum impact.

2D visual are charged at £200+ VAT which will be credited back on orders over £3000 ex VAT. 

Immersive 3D CAD Designs:
These lifelike visuals bring your design to life, allowing you to explore every angle, texture, and colour choice. Make informed decisions and be confident in the outcome before you place your order. 

Our Salon Design Package which includes 2D & 3D visuals are charged at £395+ VAT for which will be credited back on orders over £3000 ex VAT. 

3. ORDER & DELIVERY

Once you’re happy with the CAD designs, our team can assist you in ordering your furniture to suit your time scale.   

Delivery time scales:
Our Lotus Furniture can be delivered as quickly as 2 working days. 

REMTakara Belmont & Lemi ranges are delivered direct and delivery time scales will vary. (4 weeks+ depending on customisable options)

Contact our team of furniture experts today for more information or to start your salon design journey today.*
Email: furniture@salonsdirect.co.uk 
Phone: 0151 670 9200

THE FINAL RESULT

We have transformed hair and beauty salons across the UK into stylish and modern spaces. Take a look at some of our favourite’s...

OUR LATEST DESIGN: HADLEIGH HAIR LOUNGE

We’re so excited to reveal our latest salon transformation! We recently partnered with Hair By Hadleigh to bring a rustic-inspired salon vision to life through our exclusive Salon Design Service. 

WILLOW FOX HAIRDRESSING

We can’t wait to show you our latest salon transformation! We recently partnered with Alexa from Willow Fox Hairdressing in Sheffield to help bring her salon’s vision to life via our exclusive Salon Design Service.

NO.4 SALON

Introducing No.4 Salon based in West Bridgford, Nottingham. A space for clients and stylists to feel at home. Designed and brought to life by Salons Direct team.

HAIR SALON FURNITURE

BEAUTY SALON FURNITURE

NAIL SALON FURNITURE

BARBER SHOP FURNITURE

*Our team will respond to all enquiries within 1 working day.